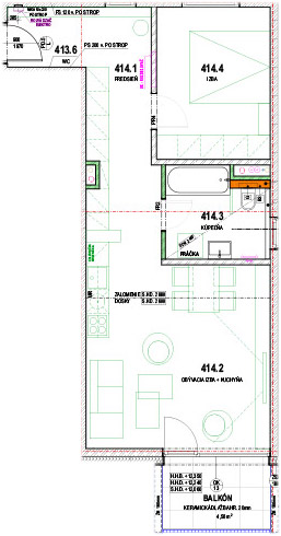
Dvojizbový byt č. 414

  • Počet izieb2
  • Podlažie5. NP
  • Interiér53.45 m2
  • Exteriér4.58 m2
  • Predsieň12.75 m2
  • Obývacia izba + Kuchyňa23.8 m2
  • Izba11.28 m2
  • Kúpelňa + WC5.62 m2
  • Balkón4.58 m2
  • Kobka2.5 - 2.8 m2
  • StavVoľný
  • Cena s DPH 153 199,20 €
  • Mám záujem

  • Financovanie

Parkovacie miesta

Realizátor projektu

Baťove rezidencie, s. r. o
IČO: 53544927
IČ DPH: SK2121481681
Sídlo: Popradské nábrežie 217, 058 01 Poprad